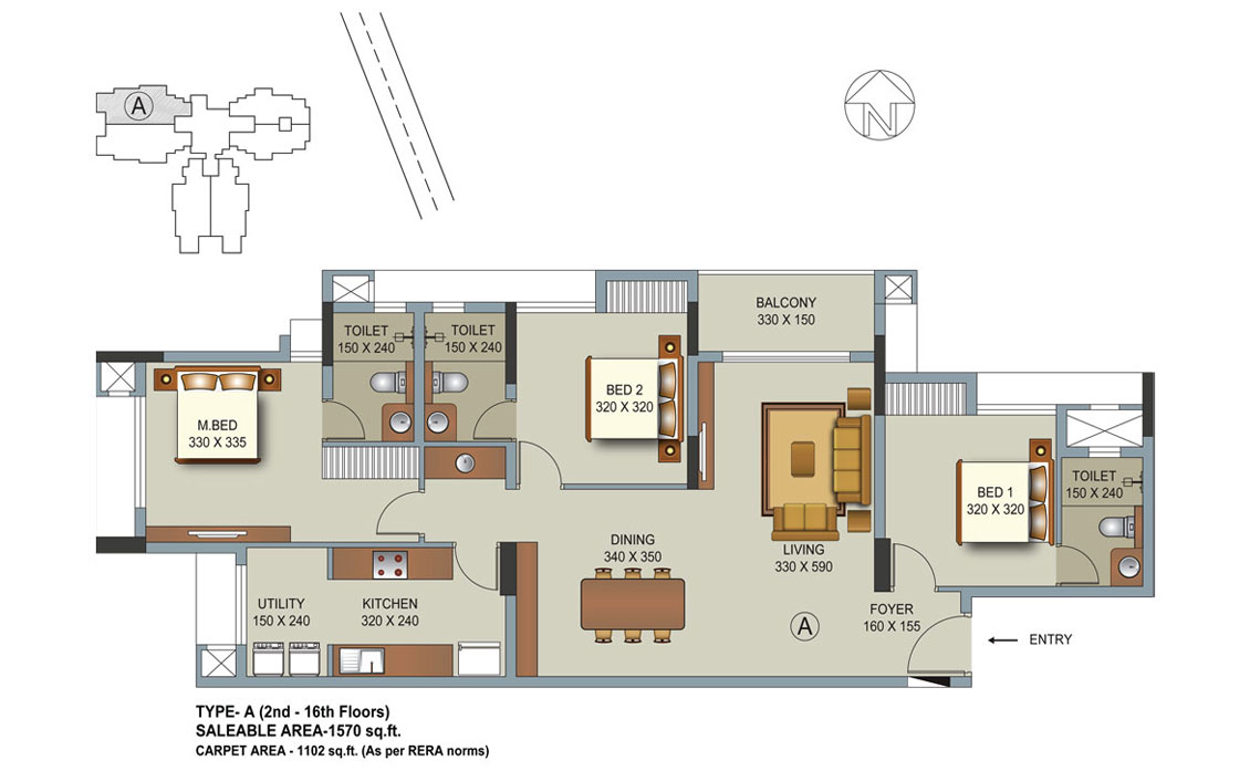
Skyline Blue Vista, luxury flats for sale in Calicut, is the 141st apartment project by Skyline Builders (Building Permit Number: TP3-BA(40168)/2017). Located close to NH 66, this project offers excellent connectivity to all essential conveniences and facilities. With a unique, contemporary design language aimed at offering a truly high-end urban lifestyle, the Skyline Blue Vista boasts of an array of world-class amenities and features. Few of the amenities at these luxury flats for sale in Calicut include a swimming pool, kids pool, fitness center, children's play area, association room, AC multi-purpose recreation hall and more. Comprising of 98 apartments with 2 and 3 BHK units ranging between 1070 Sq.ft & 1570 Sq.ft, this exclusive project from Skyline Builders is crafted for those in search of a global lifestyle.























































